AKTA作品,Apartment in Karaliauciaus street
AKTA /
2017-05-08
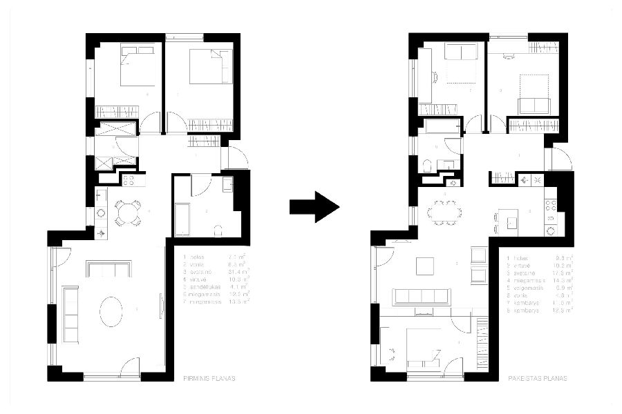
为了满足客户的需求,AKTA的设计师对平面图进行结构性改变。 大客厅空间被一件多功能家具隔开,增加了父母卧室的空间。




卫生间移到了原来的储藏室的位置,为厨房创造了更大的独立空间。 同时餐厅也融合了原来厨房的空间。 在走廊里插入高大的壁橱来实现更大的储藏设施。







公寓的生活区域以白色为主色调,辅以米灰色和丁香色。淡蓝色主要在儿童房兼书房。






好设计网 www.haoooo.cn 欢迎投稿:infohaoooo@163.com
好设计网 www.haoooo.cn欢迎投稿:infohaoooo@163.com
