田水月 ,如诗如画
有田,有乡土,安稳;有水,便温婉,舒心;还有那月,无论是一弯或半圆,都很入画,像诗。




















田水月三字本来是徐渭给自己的名画的字谜,说白了不用组一看就知道。但我就喜欢这个意思。有田,有乡土,安稳;有水,便温婉,舒心;还有那月,无论是一弯或半圆,都很入画,像诗。“田水月”本身的有趣,属于耐读的、有趣的、淡淡的。
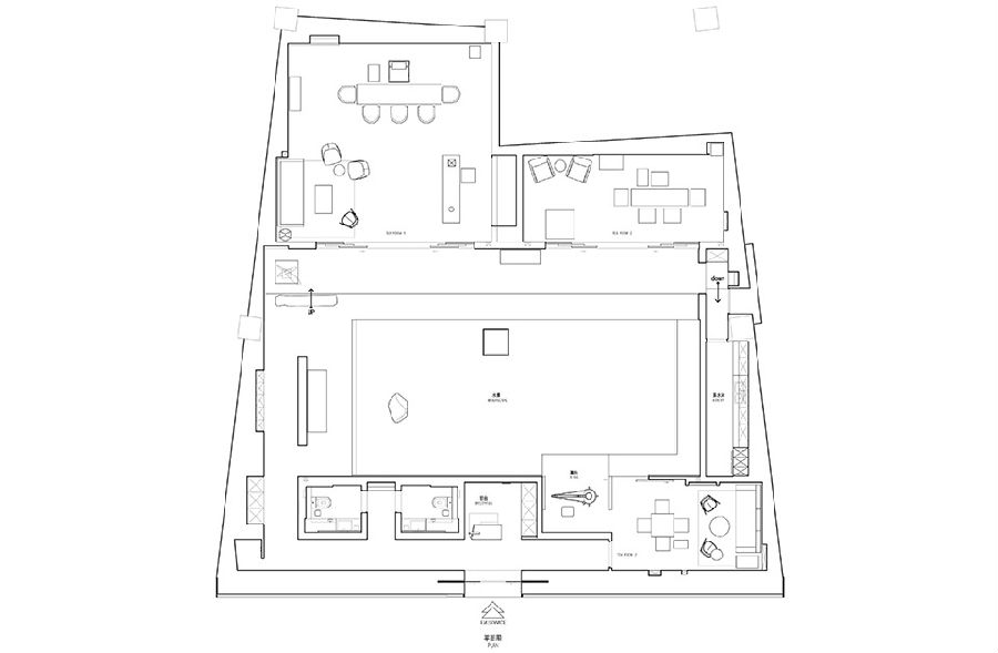
单个拆分开来看,这间不足四百平米的茶室每处也本是一般,只不过有水,布局上有浓有淡,不紧、能待得住罢了。我是将整个空间当园林对待,面积小,功用目的明确,调性自然是更容易掌控些的。整个空间是同一个记忆体,连同那身在其中的自在感一起。
我在平面布局上是采用了回游的动线模式,路线不限定,可能性稍微多了一点,空间也因此显得大了些。
水只一汪,占的面积倒不小,可以解释为池塘、湖泊或胸襟,內里躺着块和进门口一样的砚台石。其实这石与普通山石之间的细微差别处一一讲出来意义也不大,但我就是觉得那更能汇集住某种气息,平衡好整个空间的重力体系。水是内循环,自然是会流动的,但流动得并不明显,倒映着上方所有的光影,很平静。在水边细看能见着因铜板阻隔而现的涟漪,不断变幻着模样层层往下溢。侧面的那一溜黑色水洗石是可以用于演出的,宽窄适中,像T台。看客可歇息在近处的木踏步上,看得清,能互动,便于入戏,然后入迷。我很喜欢这种微距离的观赏,感觉更人文更亲近些。如果是独处栖坐,想来也是不错。
天花上几乎没有光,我的本意是尽量去解放了光,在墙角、墙上、墙面,以点、线、面的模式搭建成了整个空间的光的语言,水内的倒影再以低几个亮度的光线去补充,这样便随着整体的明暗关系生成了想要的空间意境。视线是不用向上的,人本身就不会老仰着头往上看,一来刺眼,二来总会有躲不开的阴影,现在这样更自然。光源本身就应该是空间装饰的一部分,人影绰绰,轮廓清晰,甚是美丽。其实这样设计的原因还在于此地的基本条件——没有任何的窗。没有天光的环境其实本身是有点压抑的,但借着人为的这般“水月”意象,空间的自然观感被带了出来,变得能待且能待得住了。
画和雕塑都属于一种需要场景放置的东西,说不清到底是画影响空间的气场,还是空间影响对画的感官,当然更应该是互为因果相互映衬的。我收藏的一幅中国意向的绘画不足一平方米,在未挂上墙前,只觉得不错,而放置在那位置上后,顿时气场放大了数倍,视线很难从画面上挪开,总想在其中看出个所以然来。为这个空间专门请艺术家定制的雕塑静默在璧龛里,掌管着方圆十几米的气枢。我很喜欢空间内有着艺术品的映衬,并且一直认为其是构建空间美学的一大重要组成部分,而形式自然是可以丰富多样的。例如水旁那张清末的塌,休息区的画,和音响构建在一天起的灯,大瑞的东方意向的家具,我四年前收藏的老金砖等。
当然其中还有别的细节去补充,例如那没砌满借以透光令气息游走的墙,嵌入放置茶室主人找寻、定制的茶类用具的金色置物架,几处看似随意摆放的绿植,看见便有点手痒想写两笔的留墨台……还有选好但需留意才能听清的背景音乐,水前放置的本来就可以去弹的乐器,以及配好的熏香等等。这本是一个纯以照顾第六识的空间,眼耳鼻舌身的种种好感,其实只是顺带了。
琚宾于北京
2018.04.29
好设计网 www.haoooo.cn 欢迎投稿:infohaoooo@163.com
好设计网 www.haoooo.cn欢迎投稿:infohaoooo@163.com
