北京语言大学国际关系部多功能空间
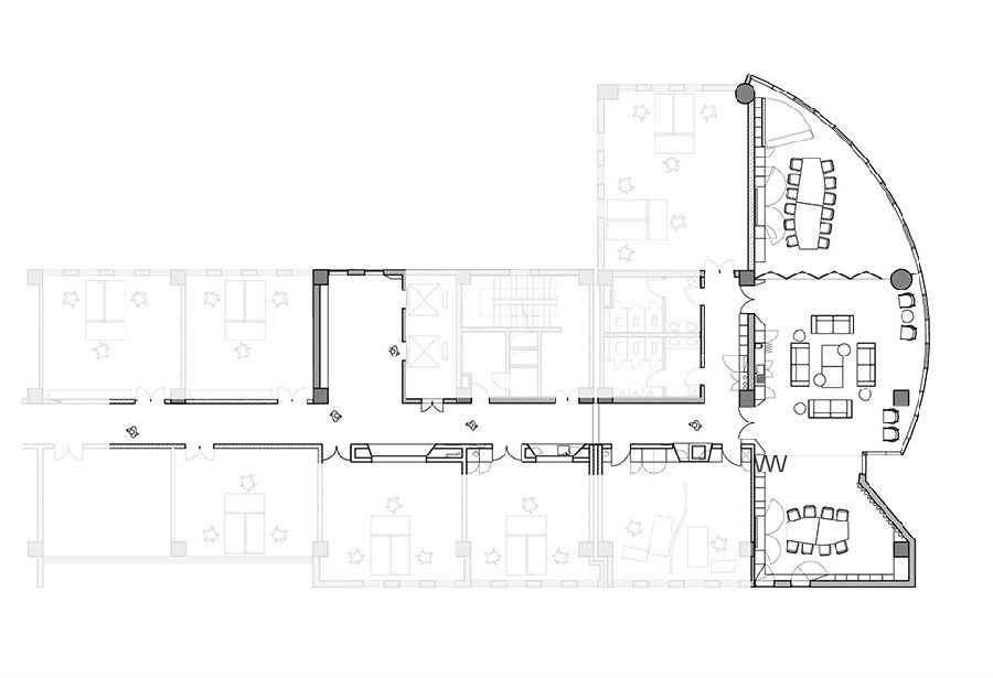
北京语言大学国际关系部委托Max Gerthel Studio 晓麦工作室和BaO Architects为他们设计一个大规模的多功能空间,该多功能空间中有两间具备集成视频会议系统的会议室和一间茶水间。这里作为一个接待海外客户与大学合作伙伴的空间,必须能够实现在中央大厅开展代表活动,以及会议和非正式会谈。同样该处也可以开放作为主办演讲、会议和宴会的大厅。







空间位于北京语言大学综合楼新楼的8层,俯瞰整个大学校园。该空间被设计得既有魅力又宏伟,且恰到好处。整个空间被木材覆盖,营造出一种对于会议和随意会谈而言的温暖氛围和良好的声音环境。将所有的服务功能(视频会议、餐具室、折隔屏及存储间)都整合具有相当深度的家具墙中,而会议桌具有完全的内置连通性。墙体的功能区被认为是“珠宝盒”,包括滑动的铰链门以及可以用多种方式打开的抽屉,还有用于陈列海外礼品和奖励的照明壁龛。





所有的家具都是为该项目专门特别定制的。椅子结合了传统的明朝时期的家具风格元素和北欧的轻松舒适。会议桌是采用了略微弯曲的设计,以实现整个房间的回声作用。而桌子腿是设置在桌子中心的,这样便可以使座位安放空间得到最大利用。



除了会议室和休息间,该项目还重新设计了走廊区域,整合了三大公共职能,即信息栏、餐具室、复印中心。墙体由被刷成白色的刨花板包裹,功能壁龛的材料为木材镶板。









世界地图放置在电梯的对面,用以欢迎来访者进入8楼的大厅。利用计算机数控进线接入墙板,以及亚克力点接入插槽,在该地图中标注了大学的全球合作伙伴的所在地。
好设计网 www.haoooo.cn 欢迎投稿:infohaoooo@163.com
好设计网 www.haoooo.cn欢迎投稿:infohaoooo@163.com
