特雷维索山居别墅,古朴舒适的居所
Massimo Galeotti Architetto / 意大利
2015-10-09
建于17世纪的Crotta别墅极有可能是威尼斯贵族Crotta家族的狩猎别墅。它是威尼斯别墅区域研究所的研究对象之一。
这座房屋位于塔尔佐(特雷维索)群山之间的小村庄Arfanta,是沿着市政公路右侧修建的第一批乡村建筑中的一座。原房屋布局中,唯有地平层是可以住人的,这反应了房屋的原始用途:狩猎别墅——只是偶尔使用,且使用的时间不会超过几个小时。

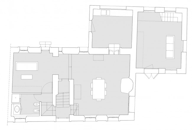
建筑师在修复这栋房屋时也运用了诸多全新的建筑元素。为了使其彻底转变成舒适的居住场所,建筑师对地面层和一层空间的功能进行再分配:杂货间变身厨房;在地面层和一层分别加设一个卫生间。修复过程中产生的废弃陶片和石材均被清理,而后重新使用到新的建筑中。















复原的工作还包括重新设计一座室外的凉棚用于停车和储藏,以及修复房屋附近的石塔。这些工作将分为几个阶段陆续完成。
好设计网 www.haoooo.cn 欢迎投稿:infohaoooo@163.com
好设计网 www.haoooo.cn欢迎投稿:infohaoooo@163.com
