厦门万象城“闽和南”餐厅 ,营造出明亮而振奋人心的氛围
NOMOS / 中国 厦门
2019-09-12
“闽和南”厦门万象城店,把具有闽南特色的石柱造型、花格样式、海棠角线条、红砖元素结合一起,让闽南特色元素与新增的设计,自然的融合到原有空间,重新赋予历史以新生,不浮华,却保留着旧日无法复刻的似水年华,为餐厅营造出明亮而振奋人心的氛围。

明档:闽和南万象城店特别增加了明档区域,同时也是甜点艺术的文化展示区。通过将传统的石柱造型与现代厨房方式相结合,让以往幕后的老手艺登上新舞台,用新艺术重新表达老文化。看是纯粹的明档,却在视觉上传播了无限量的观感,一眼看穿的空间隐藏了层层惊喜。

用餐区:富有闽南风情的木雕和花格构造私密的用餐空间,保有层次感不失细节。用水磨石与黄铜的质感,弱化冲突感,优化空间体验,提升餐厅的格调与用餐的氛围。暖色调与冷色调的碰撞,为餐厅空间赋予了活力,组成不同的微差美,丰富着整个空间语言。







包房:包房分封密式空间与半开放式空间,半开放式是以木格栅为推拉门,延伸了包房空间的视觉。



▼ 空间细部


▼ 轴测图


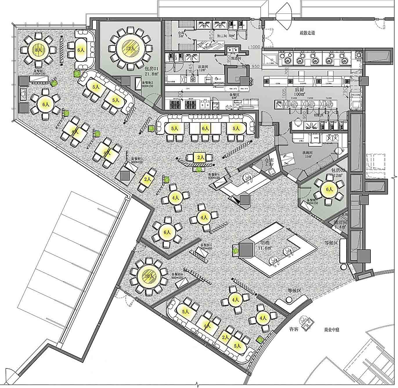
▼ 平面图

项目名称:“闽和南”餐厅
项目类型:餐饮空间、品牌餐厅、主题餐厅、中餐厅
项目面积:416.8平方米
项目地址:厦门市思明区禾祥东路万象城3楼328号
设计公司:NOMOS设计事务所
主要材料:水磨石、黄铜、壁布、木饰面、木材、玻璃
空间摄影:深圳静观文化
项目客户:厦门市闵杰餐饮文化有限公司
好设计网 www.haoooo.cn 欢迎投稿:infohaoooo@163.com
好设计网 www.haoooo.cn欢迎投稿:infohaoooo@163.com
